Your Custom Text Here
Originally built in 1923, this charming English cottage, set back on a picturesque lot, underwent a full interior redesign and renovation from our team. Designed with high-end fixtures, natural marble and rich, hardwood acacia floors, and complimented with new, drought-resistant landscaping, this home was instantly reinjected with timeless charm.
Located in quiet Mount Washington, this house needed an interior gut and an exterior makeover, but once done, the house took on an entirely new life. With ample entertaining space - replete with both deck and patio - this two-story wonder is a perfect embodiment of idyllic LA living: beautiful hillside view, central location, and a gathering place for you and yours.
This upcoming, 2800+ square foot home will be set in historic Mount Washington, with hillside, east-facing views. Designed by acclaimed architectural firm ferrierArchitectureStudio, this one-of-a-kind home will provide contemporary living in one of the hottest neighborhoods in Los Angeles.
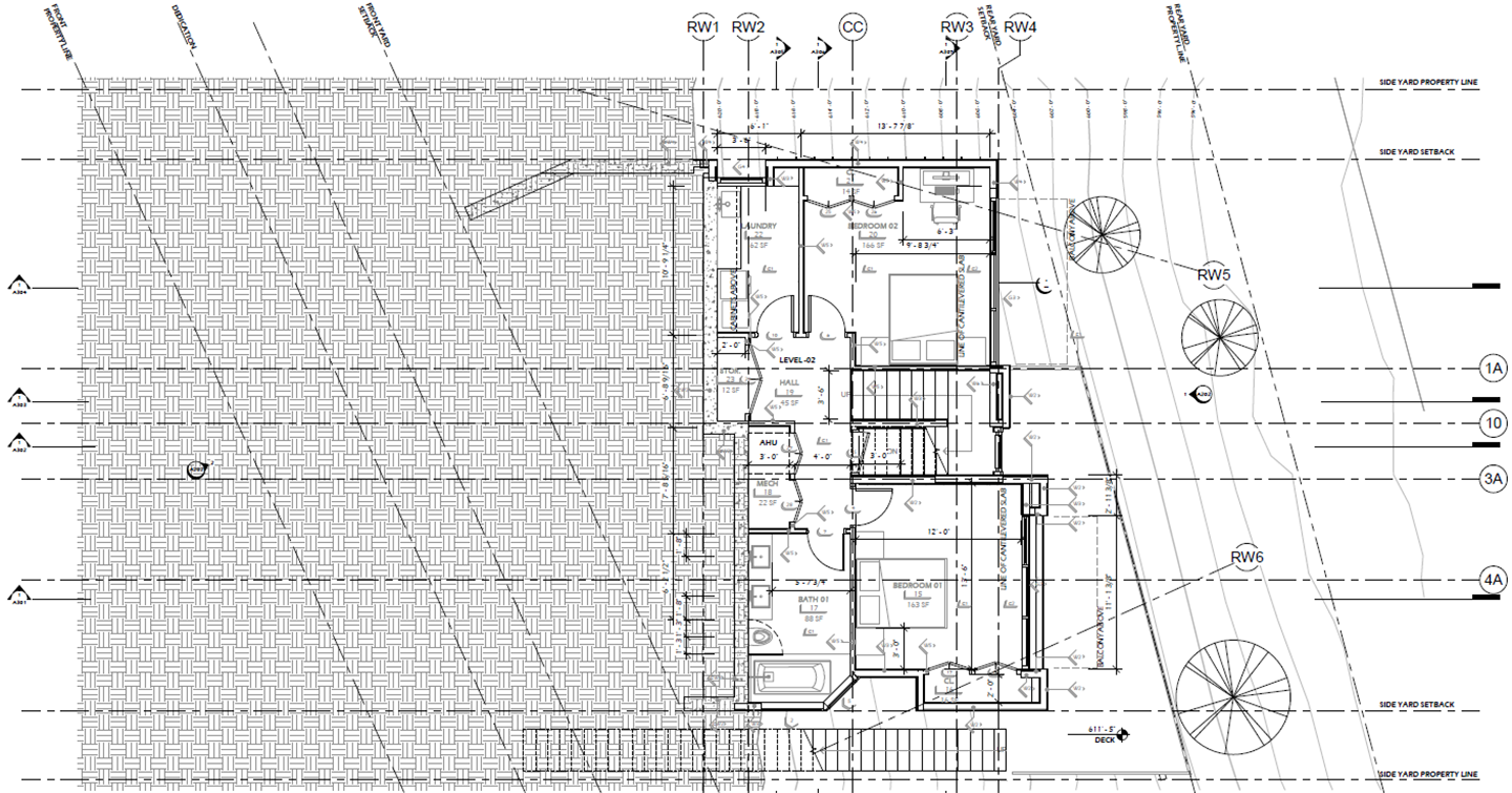
This upcoming, 3200+ square foot home will be set in historic Mount Washington, with hillside, east-facing views. Designed by acclaimed architectural firm ferrierArchitectureStudio, this one-of-a-kind home will provide contemporary living in one of the hottest neighborhoods in Los Angeles.